住宅会社

142

件

施工事例

1204

件

イベント

86

件

土地・建売

83

件

heart
件
お気に入り

お気に入り

title
工務店・ハウスメーカー 工務店・ハウスメーカーを探す 施工事例 施工事例を見る 住宅イベント 住宅イベントに行く モデルハウス モデルハウスを見る リフォーム・リノベーション リフォーム・リノベーション事例を見る 土地・建売 土地・建売を探す 一括資料請求 一括資料請求 勉強会 勉強会に参加する コンシェルジュ コンシェルジュに相談する
TOPへ戻る
工務店・ハウス
メーカーを探す
施工事例を
見る
住宅イベントに
行く
モデルハウスを
見る
リノベーション・
リフォーム事例を見る
土地・建売を
探す

セキホーム株式会社|高気密 高断熱 W断熱工法 注文住宅

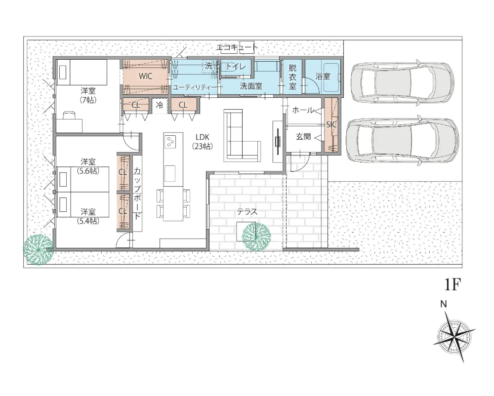
【3LDK+タイルテラス】魚津市上村木「”暮らす”を愉しみ、家族の距離がグッと近くなる」平屋モデル見学会【※間取り図有】

ring

富山県魚津市

予約必要です

【期間限定】12/13(土)~2/15(日)¦魚津市上村木にて、平屋のまちなかモデルハウスがオープン!

外観は、メンテナンス性と耐久性に優れたガルバリウム鋼板を主材に、3つの素材を張り分けた、陰影と立体感を生み出すモダンデザイン。街なかでもひときわ印象的な佇まいに仕上げました。
内装は、ホワイト×グレージュを基調に、やわらかな光が映える上質なトーンで統一。
壁・床・建具にいたるまで、色の濃淡や素材感を丁寧に揃えることで、空間全体に穏やかな一体感をもたらします。
断熱等級6(UA値0.34)・外断熱工法・全館空調システム「悠奏」を搭載し、一年を通して快適な暮らしを実現。
さらに、見た目の美しさと使いやすさを両立した設計や、暮らしが自然と整う収納計画、家事ラク動線、ウチとソトが繋がる住まい設計など、思わず「これ素敵!」と真似したくなるアイディアが満載。

心地よさと機能美が調和した、セキホームの平屋。家族みんなで、体感しに行こう!

【物件情報】
敷地面積 230.97㎡/69.86坪
延床面積 98.21㎡/29.71坪

Main Image
⟨
⟩
1/8

【3LDK+タイルテラス】魚津市上村木「”暮らす”を愉しみ、家族の距離がグッと近くなる」平屋モデル見学会【※間取り図有】

【期間限定】12/13(土)~2/15(日)¦魚津市上村木にて、平屋のまちなかモデルハウスがオープン!

外観は、メンテナンス性と耐久性に優れたガルバリウム鋼板を主材に、3つの素材を張り分けた、陰影と立体感を生み出すモダンデザイン。街なかでもひときわ印象的な佇まいに仕上げました。
内装は、ホワイト×グレージュを基調に、やわらかな光が映える上質なトーンで統一。
壁・床・建具にいたるまで、色の濃淡や素材感を丁寧に揃えることで、空間全体に穏やかな一体感をもたらします。
断熱等級6(UA値0.34)・外断熱工法・全館空調システム「悠奏」を搭載し、一年を通して快適な暮らしを実現。
さらに、見た目の美しさと使いやすさを両立した設計や、暮らしが自然と整う収納計画、家事ラク動線、ウチとソトが繋がる住まい設計など、思わず「これ素敵!」と真似したくなるアイディアが満載。

心地よさと機能美が調和した、セキホームの平屋。家族みんなで、体感しに行こう!

【物件情報】
敷地面積 230.97㎡/69.86坪
延床面積 98.21㎡/29.71坪

イベント情報

期間

2025/12/13 〜 2026/02/15

時間

10:00〜18:00

場所

富山県魚津市上村木(イベントマップ参照)

駐車場

あり

2025.

8

月

見学時間を選んでください

電話で
問い合わせる
イベント詳細情報

素材と陰影が描く、アーバンスタイルの平屋

ガルバリウム鋼板を主材に、3種の素材を貼り分けた外観は、陰影と立体感を生み出す設計美。 直線的なラインと張り出した軒が、モダンでアーバンな印象を際立たせます。 まちなかでもひときわ目を惹く佇まいです。

家族の距離が自然と近づく住まい設計

この住まいの中心は、23帖のLDKと8帖のタイルテラス。 2つの空間がゆるやかに繋がり、食事もくつろぎも、外遊びも読書も、ひとつながりの空間で楽しめます。 キッチンに立つ人と、ソファでくつろぐ人。テラスで遊ぶ子どもと、ダイニングでお茶を淹れる人。 それぞれの時間を過ごしながらも、ふと目が合って笑い合える距離感が、この家にはあります。 個室はしっかり確保しつつ、家族の気配がほどよく感じられる設計。 “ひとりの時間”も、“みんなの時間”も、どちらも心地よく過ごせる住まいです。

光と色が調和する、上質なインテリア空間

内装は、ホワイト×グレージュを基調に、やわらかな光が映える上質なトーンで統一。 壁や床、建具にいたるまで、色の濃淡や素材感を丁寧に揃えることで、空間全体に穏やかな一体感が生まれます。 フローリングの自然な木目が、空間にぬくもりを添え、間接照明が、夜にはやさしい光で包み込むように演出。 日中の自然光と、夜の照明が、それぞれの時間に心地よさをもたらします。

断熱等級6等級(UA値0.34)をクリアした、高気密・高断熱・高性能で、一年中快適な暮らし

セキホームでは、高気密・高断熱仕様に加え、外断熱工法を標準採用。 UA値0.34という優れた断熱性能により、一年を通して快適な室内環境を実現します。

暮らしに寄り添う、快適動線と収納設計

この住まいは、水回りを一直線に配置した、移動の少ない“家事ラク動線”が特長。 「洗う・干す・しまう」がひと続きになり、忙しい日々にも心にゆとりが生まれます。 収納は“使う場所にある”ことにこだわり、キッチン・洗面・各居室に適材適所のスペースを確保。 生活感をさりげなく隠しながら、整った暮らしを支えてくれます。 さらに、ゆとりある独立洗面台や室内物干し、カーテンボックスの埋込など、細やかな配慮が随所に。 見た目の美しさと使いやすさを両立した設計が、暮らしの質をぐっと高めてくれます。

イベント情報

期間

2025/12/13 〜 2026/02/15

時間

10:00〜18:00

場所

富山県魚津市上村木(イベントマップ参照)

駐車場

あり

電話で
問い合わせる

イベントMAP

地図アプリで見る
  • 会社情報
  • イベント3件
  • 施工事例14件
  • 土地・建売3件
  • ブログ11件
  • 公式サイト

閲覧履歴

arrow
  • 価格は物件の代金総額を表示しており、消費税が課税される場合は税込み価格です。 (1000円未満は切り上げ。)
  • 写真に写っている、またはパース(絵)や間取り図に描かれている家具や車などは、特にコメントがない場合、販売価格に含まれません。
  • 敷地権利が定期借地権のものは価格に権利金を含みます。
  • 建築条件付き土地価格には、建物価格は含まれません。
  • 物件情報は、原則として情報提供日の2日前に最終確認した情報です。
  • 完成予想図はいずれも外構、植栽、外観等実際のものとは多少異なることがあります。
  • 建築条件付き土地とは、その土地に建築する建物の建築請負契約が一定期間内に成立することを条件として売買される土地を指します。建築請負契約の成立に向けて、土地購入者と施工会社との間で建物の設計プランを協議するため、購入者が希望する建物の設計に関する十分な交渉期間が設定されます。この交渉期間内に希望を満たすプランが実現できるかどうかを確認し、契約の可否を判断します。なお、この期間はおおむね3ヶ月程度とされています。もし購入者が納得のいくプランを得られず、建築請負契約が成立しなかった場合には、土地売買契約は白紙となり、土地代金や手付金など、契約にかかった費用は名目に関係なく全額返金されます。
  • 建築条件土地の情報内に掲載されている、建物プラン例は、土地購入者の設計プランの参考の一例であって、プランの採用可否は任意です。
logo
instagram facebook x youtube pinterest pinterest tiktok

工務店・ハウスメーカーを探す

- 施工対応エリアから探す

富山県全域 | 富山市 | 射水市 | 高岡市 | 氷見市 | 砺波・南砺市 | 小矢部市 | 立山町・上市町・舟橋村 | 滑川市 | 魚津市 | 黒部市 | 入善町・朝日町

- 取扱住宅から探す

注文住宅 | 規格住宅 | 建売住宅

施工事例を見る

- カテゴリーから探す

新築 | リフォーム | リノベーション

住宅イベントへ行く

- カテゴリーから探す

完成見学会 | モデルハウス見学会 | イベント | セミナー | オンラインイベント | 相談会 | リフォーム・リノベーション

モデルハウスへ行く

- エリアから探す

富山県全域 | 富山市 | 射水市 | 高岡市 | 氷見市 | 砺波・南砺市 | 小矢部市 | 立山町・上市町・舟橋村 | 滑川市 | 魚津市 | 黒部市 | 入善町・朝日町

- 属性から探す

販売中 | 販売予定 | 常設展示場 | 常時見学可 | 宿泊体験可

土地を探す

- 所在地から探す

富山県全域 | 富山市 | 射水市 | 高岡市 | 氷見市 | 砺波・南砺市 | 小矢部市 | 立山町・上市町・舟橋村 | 滑川市 | 魚津市 | 黒部市 | 入善町・朝日町

建売住宅を探す

- 所在地から探す

富山県全域 | 富山市 | 射水市 | 高岡市 | 氷見市 | 砺波・南砺市 | 小矢部市 | 立山町・上市町・舟橋村 | 滑川市 | 魚津市 | 黒部市 | 入善町・朝日町

工務店・ハウスメーカーを探す >

- 施工対応エリアから探す

富山県全域 | 富山市 | 射水市 | 高岡市 | 氷見市 | 砺波・南砺市 | 小矢部市 | 立山町・上市町・舟橋村 | 滑川市 | 魚津市 | 黒部市 | 入善町・朝日町

- 取扱住宅から探す

注文住宅 | 規格住宅 | 建売住宅

施工事例を見る >

- カテゴリーから探す

新築 | リフォーム | リノベーション

住宅イベントへ行く >

- カテゴリーから探す

完成見学会 | モデルハウス見学会 | イベント | セミナー | オンラインイベント | 相談会 | リフォーム・リノベーション

モデルハウスへ行く >

- エリアから探す

富山県全域 | 富山市 | 射水市 | 高岡市 | 氷見市 | 砺波・南砺市 | 小矢部市 | 立山町・上市町・舟橋村 | 滑川市 | 魚津市 | 黒部市 | 入善町・朝日町

- 属性から探す

販売中 | 販売予定 | 常設展示場 | 常時見学可 | 宿泊体験可

土地を探す >

- 所在地から探す

富山県全域 | 富山市 | 射水市 | 高岡市 | 氷見市 | 砺波・南砺市 | 小矢部市 | 立山町・上市町・舟橋村 | 滑川市 | 魚津市 | 黒部市 | 入善町・朝日町

建売住宅を探す >

- 所在地から探す

富山県全域 | 富山市 | 射水市 | 高岡市 | 氷見市 | 砺波・南砺市 | 小矢部市 | 立山町・上市町・舟橋村 | 滑川市 | 魚津市 | 黒部市 | 入善町・朝日町

一括資料請求

一括資料請求

登録会社一覧

サイトマップ

利用規約

プライバシーポリシー

お問い合わせ

運営会社

ご掲載を希望される方へ

石川県版

guideMap_i

岩手県版

guideMap_i

宮城県版

guideMap_i

山形県版

guideMap_i

福島県版

guideMap_i

茨城県版

guideMap_i

鹿児島県版

guideMap_i

富山県の工務店 ハウスメーカー 情報サイト © IETATTA

サイトマップ

利用規約

プライバシーポリシー

お問合せ

運営会社

ご掲載を希望される方へ

登録会社一覧