住宅会社

144

件

施工事例

1250

件

イベント

104

件

土地・建売

99

件

heart
件
お気に入り

お気に入り

title
工務店・ハウスメーカー 工務店・ハウスメーカーを探す 施工事例 施工事例を見る 住宅イベント 住宅イベントに行く モデルハウス モデルハウスを見る リフォーム・リノベーション リフォーム・リノベーション事例を見る 土地・建売 土地・建売を探す 一括資料請求 一括資料請求 勉強会 勉強会に参加する コンシェルジュ コンシェルジュに相談する
TOPへ戻る
工務店・ハウス
メーカーを探す
施工事例を
見る
住宅イベントに
行く
モデルハウスを
見る
リノベーション・
リフォーム事例を見る
土地・建売を
探す
  1. イエタッタ富山
  2. 住宅イベント
  3. オダケホーム株式会社
  4. 【高岡市二塚】新モデルハウスGRAND OPEN!

オダケホーム株式会社

【高岡市二塚】新モデルハウスGRAND OPEN!

ring

高岡市二塚

予約限定特典つき
予約必要です

二塚小学校前に新しく全38区画の分譲地が誕生!
そこに新しく高性能×低価格を実現したモデルハウスが完成!
2/28(土)グランドオープンします!
オープン来場予約特典も!

■長期優良住宅
■耐震等級3
■断熱等級6 
ぜひお気軽にご来場ください

*********同時開催*********
平屋相談会
企画型住宅NEST゜販売説明会
**************************

Main Image
⟨
⟩
1/8

【高岡市二塚】新モデルハウスGRAND OPEN!

二塚小学校前に新しく全38区画の分譲地が誕生!
そこに新しく高性能×低価格を実現したモデルハウスが完成!
2/28(土)グランドオープンします!
オープン来場予約特典も!

■長期優良住宅
■耐震等級3
■断熱等級6 
ぜひお気軽にご来場ください

*********同時開催*********
平屋相談会
企画型住宅NEST゜販売説明会
**************************

イベント情報

期間

2026/02/28 〜 2026/03/15

時間

10:00〜17:00

場所

高岡市二塚

2025.

8

月

見学希望日を選んでください

日

日

見学時間を選んでください

こんな方にオススメ!
checkbox

高岡市で分譲住宅をお探しの方

checkbox

高岡市で土地を探して新築をご検討の方

checkbox

子育てのしやすい新しい分譲地に住みたい方

checkbox

コスパの良い高性能住宅に興味がある方

電話で
問い合わせる
イベント詳細情報

新モデルハウスGRAND OPEN

高岡市二塚にて新しくモデルハウスが誕生!

モデルハウス・分譲地の詳細

モデルハウスは販売中! 2026年3月までのお引渡しで50万円グレードアップ工事サービス!

二塚分譲地の概要

二塚小学校の目の前に新しい分譲地誕生! これから新生活を始める同世代家族が集まりやすい環境。 小学校・病院・駅も近く、商業施設多数で子育て世代にもおすすめです。

新しく完成するモデルハウスの外観

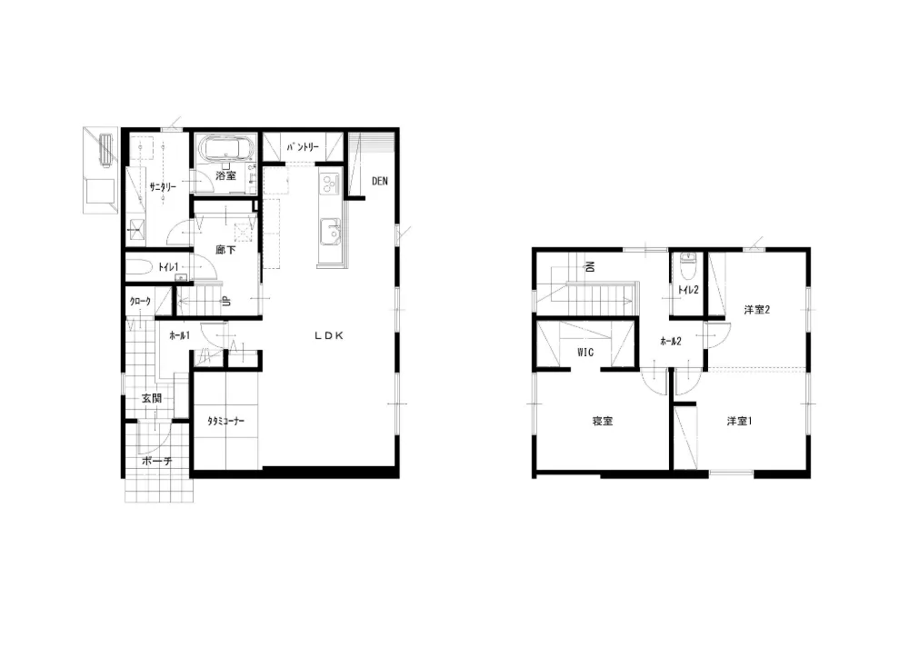
モデルハウスの平面図

約32坪 家族が自然とリビングに集まる住まい

内観イメージ

落ち着いた北欧ナチュラルな内装

区画図

全38区画販売中

二塚分譲地の地図

二塚小学校目の前

イベント情報

期間

2026/02/28 〜 2026/03/15

時間

10:00〜17:00

場所

高岡市二塚

電話で
問い合わせる

イベントMAP

地図アプリで見る
  • 会社情報
  • イベント9件
  • 施工事例8件
  • モデルハウス9件
  • 土地・建売22件
  • 公式サイト

閲覧履歴

arrow
  • 価格は物件の代金総額を表示しており、消費税が課税される場合は税込み価格です。 (1000円未満は切り上げ。)
  • 写真に写っている、またはパース(絵)や間取り図に描かれている家具や車などは、特にコメントがない場合、販売価格に含まれません。
  • 敷地権利が定期借地権のものは価格に権利金を含みます。
  • 建築条件付き土地価格には、建物価格は含まれません。
  • 物件情報は、原則として情報提供日の2日前に最終確認した情報です。
  • 完成予想図はいずれも外構、植栽、外観等実際のものとは多少異なることがあります。
  • 建築条件付き土地とは、その土地に建築する建物の建築請負契約が一定期間内に成立することを条件として売買される土地を指します。建築請負契約の成立に向けて、土地購入者と施工会社との間で建物の設計プランを協議するため、購入者が希望する建物の設計に関する十分な交渉期間が設定されます。この交渉期間内に希望を満たすプランが実現できるかどうかを確認し、契約の可否を判断します。なお、この期間はおおむね3ヶ月程度とされています。もし購入者が納得のいくプランを得られず、建築請負契約が成立しなかった場合には、土地売買契約は白紙となり、土地代金や手付金など、契約にかかった費用は名目に関係なく全額返金されます。
  • 建築条件土地の情報内に掲載されている、建物プラン例は、土地購入者の設計プランの参考の一例であって、プランの採用可否は任意です。
logo
instagram facebook x youtube pinterest pinterest tiktok

工務店・ハウスメーカーを探す

- 施工対応エリアから探す

富山県全域 | 富山市 | 射水市 | 高岡市 | 氷見市 | 砺波・南砺市 | 小矢部市 | 立山町・上市町・舟橋村 | 滑川市 | 魚津市 | 黒部市 | 入善町・朝日町

- 取扱住宅から探す

注文住宅 | 規格住宅 | 建売住宅

施工事例を見る

- カテゴリーから探す

新築 | リフォーム | リノベーション

住宅イベントへ行く

- カテゴリーから探す

完成見学会 | モデルハウス見学会 | イベント | セミナー | オンラインイベント | 相談会 | リフォーム・リノベーション

モデルハウスへ行く

- エリアから探す

富山県全域 | 富山市 | 射水市 | 高岡市 | 氷見市 | 砺波・南砺市 | 小矢部市 | 立山町・上市町・舟橋村 | 滑川市 | 魚津市 | 黒部市 | 入善町・朝日町

- 属性から探す

販売中 | 販売予定 | 常設展示場 | 常時見学可 | 宿泊体験可

土地を探す

- 所在地から探す

富山県全域 | 富山市 | 射水市 | 高岡市 | 氷見市 | 砺波・南砺市 | 小矢部市 | 立山町・上市町・舟橋村 | 滑川市 | 魚津市 | 黒部市 | 入善町・朝日町

建売住宅を探す

- 所在地から探す

富山県全域 | 富山市 | 射水市 | 高岡市 | 氷見市 | 砺波・南砺市 | 小矢部市 | 立山町・上市町・舟橋村 | 滑川市 | 魚津市 | 黒部市 | 入善町・朝日町

工務店・ハウスメーカーを探す >

- 施工対応エリアから探す

富山県全域 | 富山市 | 射水市 | 高岡市 | 氷見市 | 砺波・南砺市 | 小矢部市 | 立山町・上市町・舟橋村 | 滑川市 | 魚津市 | 黒部市 | 入善町・朝日町

- 取扱住宅から探す

注文住宅 | 規格住宅 | 建売住宅

施工事例を見る >

- カテゴリーから探す

新築 | リフォーム | リノベーション

住宅イベントへ行く >

- カテゴリーから探す

完成見学会 | モデルハウス見学会 | イベント | セミナー | オンラインイベント | 相談会 | リフォーム・リノベーション

モデルハウスへ行く >

- エリアから探す

富山県全域 | 富山市 | 射水市 | 高岡市 | 氷見市 | 砺波・南砺市 | 小矢部市 | 立山町・上市町・舟橋村 | 滑川市 | 魚津市 | 黒部市 | 入善町・朝日町

- 属性から探す

販売中 | 販売予定 | 常設展示場 | 常時見学可 | 宿泊体験可

土地を探す >

- 所在地から探す

富山県全域 | 富山市 | 射水市 | 高岡市 | 氷見市 | 砺波・南砺市 | 小矢部市 | 立山町・上市町・舟橋村 | 滑川市 | 魚津市 | 黒部市 | 入善町・朝日町

建売住宅を探す >

- 所在地から探す

富山県全域 | 富山市 | 射水市 | 高岡市 | 氷見市 | 砺波・南砺市 | 小矢部市 | 立山町・上市町・舟橋村 | 滑川市 | 魚津市 | 黒部市 | 入善町・朝日町

一括資料請求

一括資料請求

登録会社一覧

サイトマップ

利用規約

プライバシーポリシー

お問い合わせ

運営会社

ご掲載を希望される方へ

石川県版

guideMap_i

岩手県版

guideMap_i

宮城県版

guideMap_i

山形県版

guideMap_i

福島県版

guideMap_i

茨城県版

guideMap_i

鹿児島県版

guideMap_i

愛媛県版

guideMap_i

関西版

guideMap_i

富山県の工務店 ハウスメーカー 情報サイト © IETATTA

サイトマップ

利用規約

プライバシーポリシー

お問合せ

運営会社

ご掲載を希望される方へ

登録会社一覧

イエタッタ富山 > 住宅イベント > オダケホーム株式会社 > 【高岡市二塚】新モデルハウスGRAND OPEN!