住宅会社

143

件

施工事例

1260

件

イベント

85

件

土地・建売

96

件

heart
件
お気に入り

お気に入り

title
工務店・ハウスメーカー 工務店・ハウスメーカーを探す 施工事例 施工事例を見る 住宅イベント 住宅イベントに行く モデルハウス モデルハウスを見る リフォーム・リノベーション リフォーム・リノベーション事例を見る 土地・建売 土地・建売を探す 一括資料請求 一括資料請求 勉強会 勉強会に参加する コンシェルジュ コンシェルジュに相談する
TOPへ戻る
工務店・ハウス
メーカーを探す
施工事例を
見る
住宅イベントに
行く
モデルハウスを
見る
リノベーション・
リフォーム事例を見る
土地・建売を
探す
  1. イエタッタ富山
  2. 住宅イベント
  3. 野島建設 温かい人が集まる暖かい家 NOJIMAの“ゼロ・ハウス“
  4. 【ペットと一緒に入れるモデルハウス】 一級建築士と獣医師が考えた理想の住まい〈富山県魚津市〉

野島建設 温かい人が集まる暖かい家 NOJIMAの“ゼロ・ハウス“

【ペットと一緒に入れるモデルハウス】 一級建築士と獣医師が考えた理想の住まい〈富山県魚津市〉

ring

予約必要です

ペットと快適に暮らすための、理想の住まいが完成!
近年、ペットと暮らす世帯が増え、「人も動物も心地よく過ごせる家」が求められています。

今回のモデルハウスは、一級建築士と獣医師の共同監修により、
ペットの健康・安全・快適性はもちろん、飼い主の暮らしやすさも叶えた特別な住まい。

ワンちゃんやネコちゃんと一緒にご見学いただけます◎

開催日:いつでもご気軽にご予約ください
時間:9:00~19:30(最終受付18:00)
場所:魚津市友道(野島建設友道事務所すぐ近く)

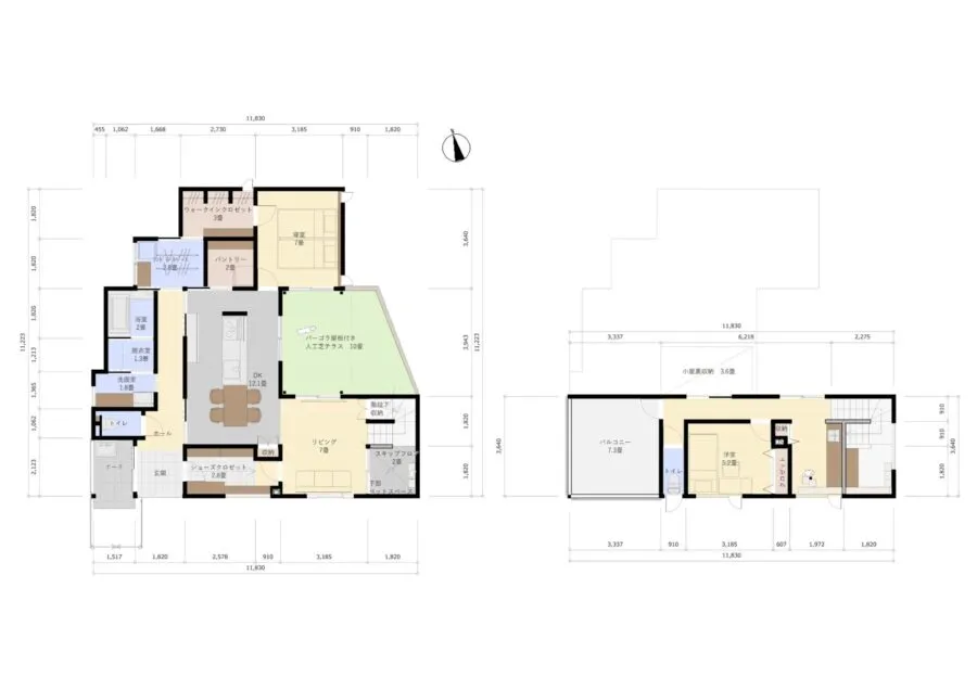
・延床面積:39.12坪(1F 27.16坪 / 2F 11.96坪)
・2LDK+スキップフロア+バルコニー
・高断熱・高気密(断熱等級6、C値0.5以下)
・ZEH水準超え/GX志向型住宅補助金(160万円)対象

Main Image
⟨
⟩
1/8

【ペットと一緒に入れるモデルハウス】 一級建築士と獣医師が考えた理想の住まい〈富山県魚津市〉

ペットと快適に暮らすための、理想の住まいが完成!
近年、ペットと暮らす世帯が増え、「人も動物も心地よく過ごせる家」が求められています。

今回のモデルハウスは、一級建築士と獣医師の共同監修により、
ペットの健康・安全・快適性はもちろん、飼い主の暮らしやすさも叶えた特別な住まい。

ワンちゃんやネコちゃんと一緒にご見学いただけます◎

開催日:いつでもご気軽にご予約ください
時間:9:00~19:30(最終受付18:00)
場所:魚津市友道(野島建設友道事務所すぐ近く)

・延床面積:39.12坪(1F 27.16坪 / 2F 11.96坪)
・2LDK+スキップフロア+バルコニー
・高断熱・高気密(断熱等級6、C値0.5以下)
・ZEH水準超え/GX志向型住宅補助金(160万円)対象

イベント情報

期間

2026/04/03 〜 2026/04/30

時間

09:00〜19:00

注意事項

各時間1組限定・完全予約制

【ワンちゃんとご来場の方へ】
オムツの着用、リード(またはカートやキャリーバッグ)のご持参をよろしくお願いします。

駐車場が停めにくいため、すぐ近くのDogRunWellnessの駐車場をご利用ください。
〒937-0806 富山県魚津市友道388-1

2025.

8

月

見学時間を選んでください

チェックポイント
checkbox

におい対策と空気の質を両立する高性能換気システム

checkbox

ペットが楽しく、安心して過ごせる空間設計

checkbox

1階寝室&キッチン中心の回遊動線で家事ラク&見守りも◎

電話で
問い合わせる
イベント詳細情報

ペット特有のにおいやハウスダストを床から直接排気

ダクトレス吸気&高性能フィルターでPM2.5・花粉も除去 、赤ちゃんやペットに優しい理想の空気環境を実現

キャットウォーク・キャットタワーでネコも満足

中庭テラスやバルコニー(屋根付き)で自由に遊べる

スキップフロアを活用した落ち着けるペット専用スペース

キッチン近くに水回りとファミリークロゼットを集約

子どもやペットを見守りながら家事ができる理想の間取り、 家族みんなに優しい平屋のような暮らしやすさ

イベント情報

期間

2026/04/03 〜 2026/04/30

時間

09:00〜19:00

注意事項

各時間1組限定・完全予約制

【ワンちゃんとご来場の方へ】
オムツの着用、リード(またはカートやキャリーバッグ)のご持参をよろしくお願いします。

駐車場が停めにくいため、すぐ近くのDogRunWellnessの駐車場をご利用ください。
〒937-0806 富山県魚津市友道388-1

電話で
問い合わせる
  • 会社情報
  • イベント5件
  • 施工事例56件
  • モデルハウス3件
  • リフォーム
    リノベーション
    7件
  • 土地・建売2件
  • ブログ342件
  • 公式サイト

閲覧履歴

arrow
  • 価格は物件の代金総額を表示しており、消費税が課税される場合は税込み価格です。 (1000円未満は切り上げ。)
  • 写真に写っている、またはパース(絵)や間取り図に描かれている家具や車などは、特にコメントがない場合、販売価格に含まれません。
  • 敷地権利が定期借地権のものは価格に権利金を含みます。
  • 建築条件付き土地価格には、建物価格は含まれません。
  • 物件情報は、原則として情報提供日の2日前に最終確認した情報です。
  • 完成予想図はいずれも外構、植栽、外観等実際のものとは多少異なることがあります。
  • 建築条件付き土地とは、その土地に建築する建物の建築請負契約が一定期間内に成立することを条件として売買される土地を指します。建築請負契約の成立に向けて、土地購入者と施工会社との間で建物の設計プランを協議するため、購入者が希望する建物の設計に関する十分な交渉期間が設定されます。この交渉期間内に希望を満たすプランが実現できるかどうかを確認し、契約の可否を判断します。なお、この期間はおおむね3ヶ月程度とされています。もし購入者が納得のいくプランを得られず、建築請負契約が成立しなかった場合には、土地売買契約は白紙となり、土地代金や手付金など、契約にかかった費用は名目に関係なく全額返金されます。
  • 建築条件土地の情報内に掲載されている、建物プラン例は、土地購入者の設計プランの参考の一例であって、プランの採用可否は任意です。
logo
instagram facebook x youtube pinterest pinterest tiktok

工務店・ハウスメーカーを探す

- 施工対応エリアから探す

富山県全域 | 富山市 | 射水市 | 高岡市 | 氷見市 | 砺波・南砺市 | 小矢部市 | 立山町・上市町・舟橋村 | 滑川市 | 魚津市 | 黒部市 | 入善町・朝日町

- 取扱住宅から探す

注文住宅 | 規格住宅 | 建売住宅

施工事例を見る

- カテゴリーから探す

新築 | リフォーム | リノベーション

住宅イベントへ行く

- カテゴリーから探す

完成見学会 | モデルハウス見学会 | イベント | セミナー | オンラインイベント | 相談会 | リフォーム・リノベーション

モデルハウスへ行く

- エリアから探す

富山県全域 | 富山市 | 射水市 | 高岡市 | 氷見市 | 砺波・南砺市 | 小矢部市 | 立山町・上市町・舟橋村 | 滑川市 | 魚津市 | 黒部市 | 入善町・朝日町

- 属性から探す

販売中 | 販売予定 | 常設展示場 | 常時見学可 | 宿泊体験可

土地を探す

- 所在地から探す

富山県全域 | 富山市 | 射水市 | 高岡市 | 氷見市 | 砺波・南砺市 | 小矢部市 | 立山町・上市町・舟橋村 | 滑川市 | 魚津市 | 黒部市 | 入善町・朝日町

建売住宅を探す

- 所在地から探す

富山県全域 | 富山市 | 射水市 | 高岡市 | 氷見市 | 砺波・南砺市 | 小矢部市 | 立山町・上市町・舟橋村 | 滑川市 | 魚津市 | 黒部市 | 入善町・朝日町

工務店・ハウスメーカーを探す >

- 施工対応エリアから探す

富山県全域 | 富山市 | 射水市 | 高岡市 | 氷見市 | 砺波・南砺市 | 小矢部市 | 立山町・上市町・舟橋村 | 滑川市 | 魚津市 | 黒部市 | 入善町・朝日町

- 取扱住宅から探す

注文住宅 | 規格住宅 | 建売住宅

施工事例を見る >

- カテゴリーから探す

新築 | リフォーム | リノベーション

住宅イベントへ行く >

- カテゴリーから探す

完成見学会 | モデルハウス見学会 | イベント | セミナー | オンラインイベント | 相談会 | リフォーム・リノベーション

モデルハウスへ行く >

- エリアから探す

富山県全域 | 富山市 | 射水市 | 高岡市 | 氷見市 | 砺波・南砺市 | 小矢部市 | 立山町・上市町・舟橋村 | 滑川市 | 魚津市 | 黒部市 | 入善町・朝日町

- 属性から探す

販売中 | 販売予定 | 常設展示場 | 常時見学可 | 宿泊体験可

土地を探す >

- 所在地から探す

富山県全域 | 富山市 | 射水市 | 高岡市 | 氷見市 | 砺波・南砺市 | 小矢部市 | 立山町・上市町・舟橋村 | 滑川市 | 魚津市 | 黒部市 | 入善町・朝日町

建売住宅を探す >

- 所在地から探す

富山県全域 | 富山市 | 射水市 | 高岡市 | 氷見市 | 砺波・南砺市 | 小矢部市 | 立山町・上市町・舟橋村 | 滑川市 | 魚津市 | 黒部市 | 入善町・朝日町

一括資料請求

一括資料請求

登録会社一覧

サイトマップ

利用規約

プライバシーポリシー

お問い合わせ

運営会社

ご掲載を希望される方へ

岩手県版

guideMap_i

宮城県版

guideMap_i

山形県版

guideMap_i

福島県版

guideMap_i

茨城県版

guideMap_i

石川県版

guideMap_i

関西版

guideMap_i

愛媛県版

guideMap_i

鹿児島県版

guideMap_i

富山県の工務店 ハウスメーカー 情報サイト © IETATTA

サイトマップ

利用規約

プライバシーポリシー

お問合せ

運営会社

ご掲載を希望される方へ

登録会社一覧

イエタッタ富山 > 住宅イベント > 野島建設 温かい人が集まる暖かい家 NOJIMAの“ゼロ・ハウス“ > 【ペットと一緒に入れるモデルハウス】 一級建築士と獣医師が考えた理想の住まい〈富山県魚津市〉