株式会社さくら

氷見市窪平屋分譲住宅

販売中
スーパー徒歩10分以内
小学校徒歩10分以内
ドラッグストア徒歩10分以内
1/8

耐震等級3 断熱等級6
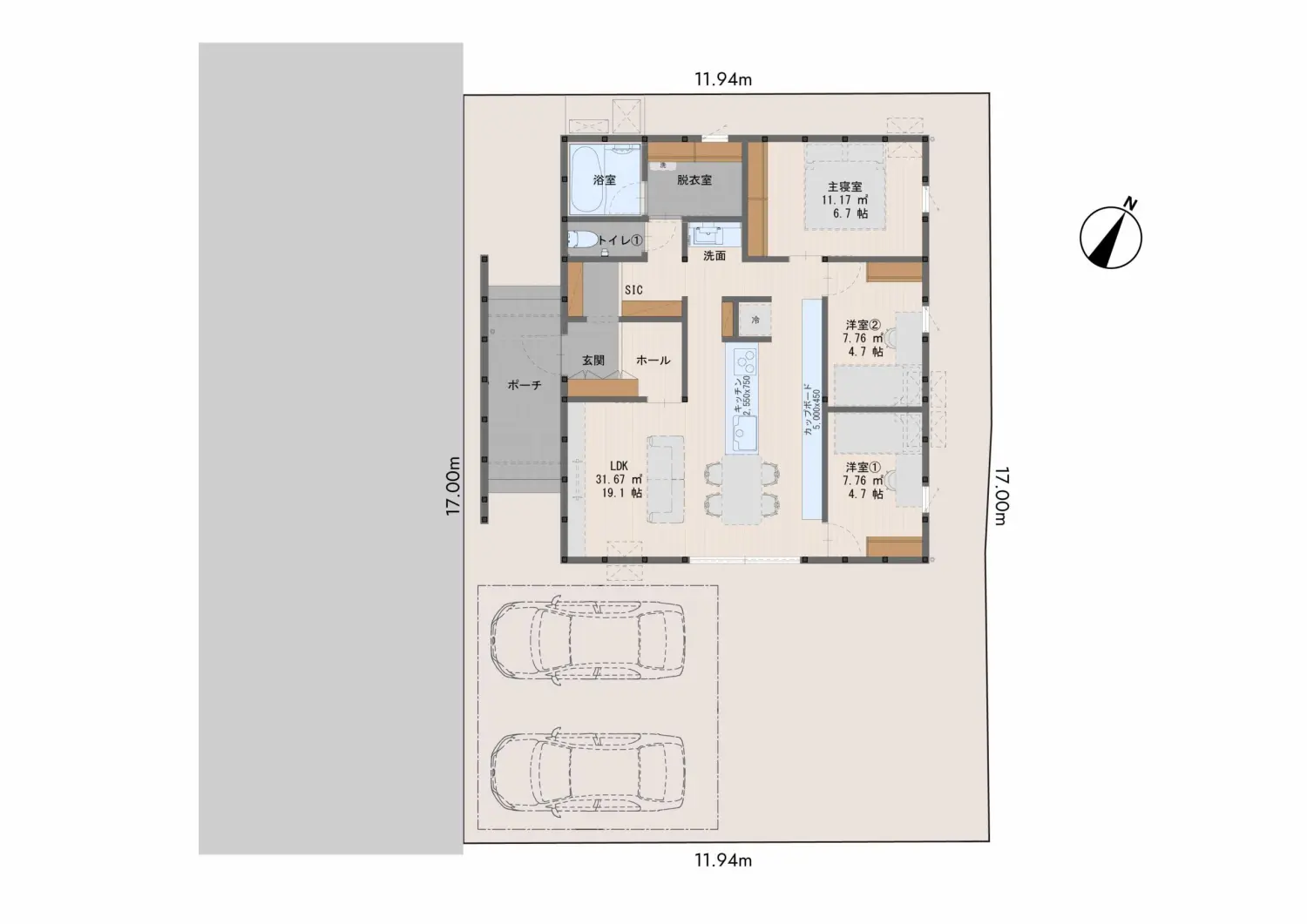
コンパクトなサイズ感の心地よい平屋暮らし。
シンプルかつ生活のしやすさも兼ね備えた間取りです。

物件情報

情報更新日

2025年11月13日 11:55

販売価格

3499万円

間取り

3LDK

土地面積

202.98 m² [61.40坪]

建物面積

78.25 m² [23.67坪]

構造

平屋

住所

富山県氷見市窪1219番4

土地の権利形態

完成時期

2025年12月完成予定

間取り

3LDK

所在地MAP

物件情報

所在地

富山県氷見市窪1219番4

交通

JR氷見線「氷見駅」徒歩19分

土地面積

202.98 m² [61.40坪]

建物面積

78.25 m² [23.67坪]

建ぺい率・容積率

60%、200%

間取り

3LDK

建物構造

駐車場

4台

道路付け

西面道路幅員6m接道17m

私道負担・道路

なし

負担金

電気

北陸電力

上水道

公営水道

下水道

公共下水

ガス

なし

都市計画

非線引き区域

開発面積

用途地域

第一種住居地域

地目

宅地

土地の権利

借地権の種類・期間

取引条件の有効期限

建築確認番号

第ERI-25017310号

制限事項

特記事項

販売価格

3499万円

販売区画・戸数

総区画・戸数

造成完了時期

完成時期

2025年12月完成予定

引き渡し時期

売主

取引形態

売買

学区情報

備考

情報更新日

2025/11/13

次回更新予定日

2025/11/27

販売会社情報

社名

株式会社さくら

ブランド名

所在地

富山県富山市二口町5-9-1

営業時間

10:00-18:00

定休日

毎週水曜日、年末年始、夏季休暇、GW休暇

電話番号

076-493-4166

FAX

076-493-4176

建築許可番号

国土交通大臣(4)第007489号

宅建業免許番号

宅地建物取引業者許可国土交通大臣(4)第7489号

所属団体名及び公正取引協議会加盟事業者

(公社)富山県宅地建物取引業協会会員
北陸不動産公正取引協議会加盟

閲覧履歴

arrow